Agátová, Veľký Biel, Slovak Republic 2459

Predaj 4 izbových RD,novostavby,Veľký Biel,Senec

268 000,00€
REALITY SERVISS (6 offers) Malý trh 2, 81108 Bratislava (SK)
Translate description

Ponúkame na predaj projekt Agátová ulica , krásne novostavby rodinných domov-dvojdomov,ktoré sú vedené ako samostatne stojace domy s vlastným súpisným číslom v obci Veľký Biel-k.ú. Malý Biel.
V ponuke sú 2 typy rodinných domov :
Dom č.1
• Rodinné domy s obytným podkrovím 4+2
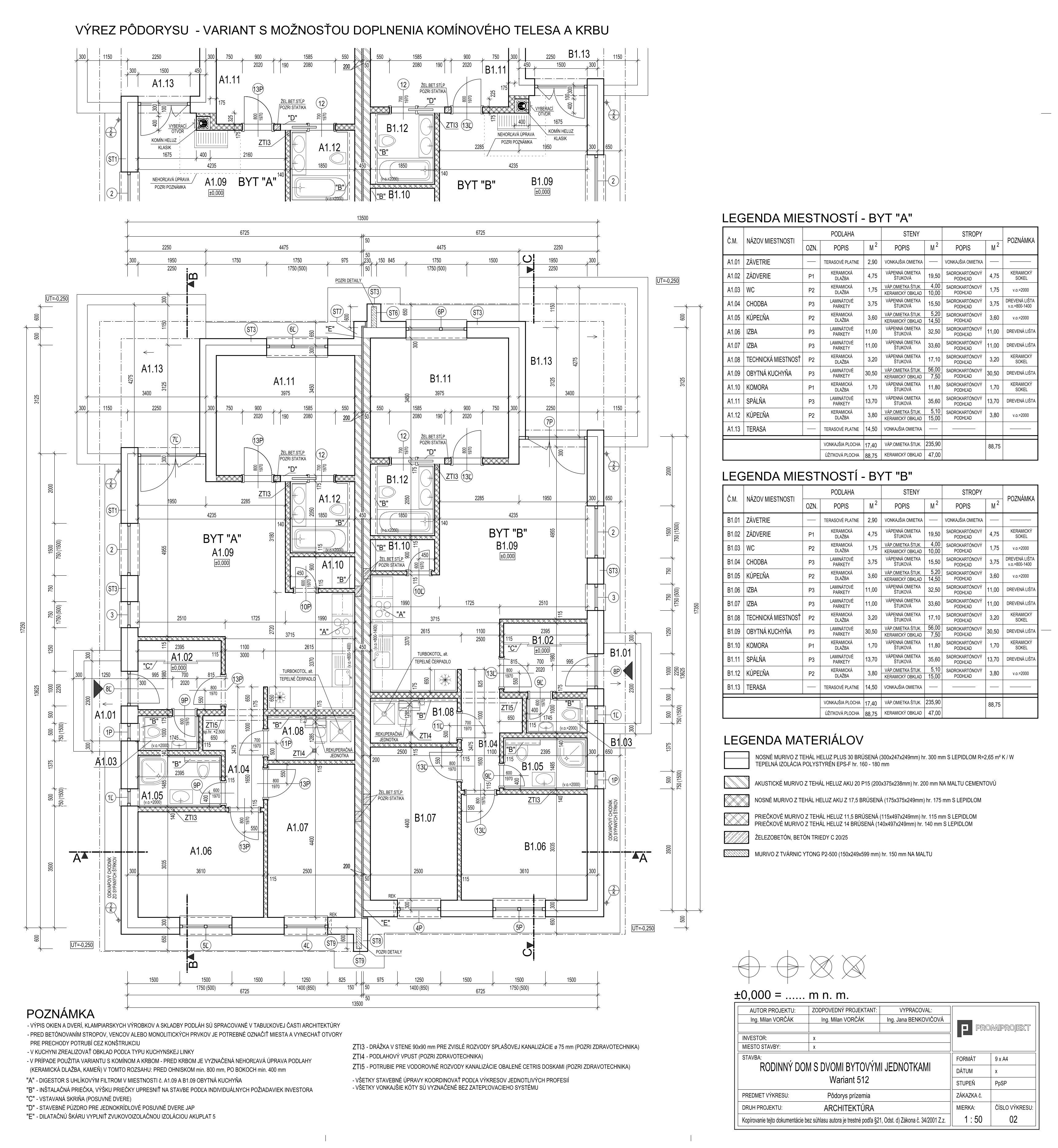
-4 izbový rodinný dom má úžitkovú plochu 88,95 m2,2 x kúpelňa,3x wc,obytné podkrovie so strešnými oknami , kde je vstupný priestor a dve samostatné izby o výmere 60 m2.Celkový potenciál domu má 6 izieb ako gvojgeneračný dom s plochou 148 m2.V cene je podlahové kúrenie,tepelné čerpadlo,rekuperácia,vonkajšie žalúzie,terénna úprava,oplotenie. Za domom je terasa,pozemky sú od 250 m2 do 352 m2 podľa polohy domu.
Cena domov je 268 000 eur v stave holodomu.
Dom č.2
• Rodinné domy bez obytného podkrovia
-4 izbový rodinný dom,s úžitkovou plochou 88,95 m2 bez obytného podkrovia ,iba úložný priestor.Za domom je terasa,pozemky sú od 250 m2 do 352 m2 podľa polohy domu.V cene je tepelné čerpadlo,rekuperácia,podlahové elektrické kúrenie,príprava na vonkajšie elektrické žalúzie,oplotenie,dlažba.
Cena domov v stave holodomu je 248 000 eur.
• Rodinné domy bez obytného podkrovia v prevedení štandard:
.V cene je podlahové kúrenie,tepelné čerpadlo,rekuperácia,vonkajšie žalúzie,terénna úprava,oplotenie,podlahy,kúpelne,interiérové dvere,vonkajšie žalúzie ,kuchynská linka
Cena domov v štandarde je 268 000 eur

Obec Veľký Biel je v blízkosti hlavného mesta s výbornou dostupnosťou diaľnice,cca 15 minút.Táto lokalita v rámci starej časti obce ponúka kúpanie a relax pri jazerách .Bližie info v RK.Kontakt 0944/66 25 24 , 0910/170 070

Country
Slovak Republic
Category
Family house
Type
Sale
Condition
Under construction
Usable area
106.00 m²
Balcony
No
Loggia
No
Basement
No
Date of adding
23.09.2024